Planos De Iluminacion De Una Casa
Planos De Iluminacion De Una Casa – La elección de materiales y colores en el diseño interior de una casa puede influir en gran medida en la. Contiene simbología, descripción, señalización, conexión y escala. Se trata de la iluminación de una vivienda unifamiliar. El proyecto de ilumación es la ejecución y la.
Alfombras una buena alfombra siempre le otorga a cualquier espacio una mayor sofisticación, y lo hace ver mucho más amplio. ¿tienes alguna duda sobre cómo planificar el diseño de iluminación de un proyecto arquitectónico o de interiorismo en el que estás trabajando? Que mejor iluminación para el pasillo de las habitaciones de planta alta, unas lámparas que iluminen el piso y el techo, creando. También muestro como dejar el plano arquitectónico para empezar a realizar la distribución de tomacorrientes en cada área de la casa.
Planos De Iluminacion De Una Casa
Planos De Iluminacion De Una Casa
Un proyecto de iluminación para casa de calidad ha de contemplar distintos tipos de luminarias y varios circuitos o niveles en cada habitación. Cálculo por unidad de vivienda:. El pasillo de las habitaciones de planta alta.
La guía definitiva de iluminación para el hogar natural o artificial, la iluminación es uno de los puntos clave para decorar un hogar. Este es el primero de seis videos en los. La casa consta de una sola planta, con dos habitaciones, dos baños, sala, cocina, comedor, lavandería y terraza.
En el salón, es recomendable. Sin embargo, muchas personas olvidan que la iluminación crea un. Disenos y planos de iluminación la decoración de cualquier lugar es vital, ya que lo hace único y distinguible.
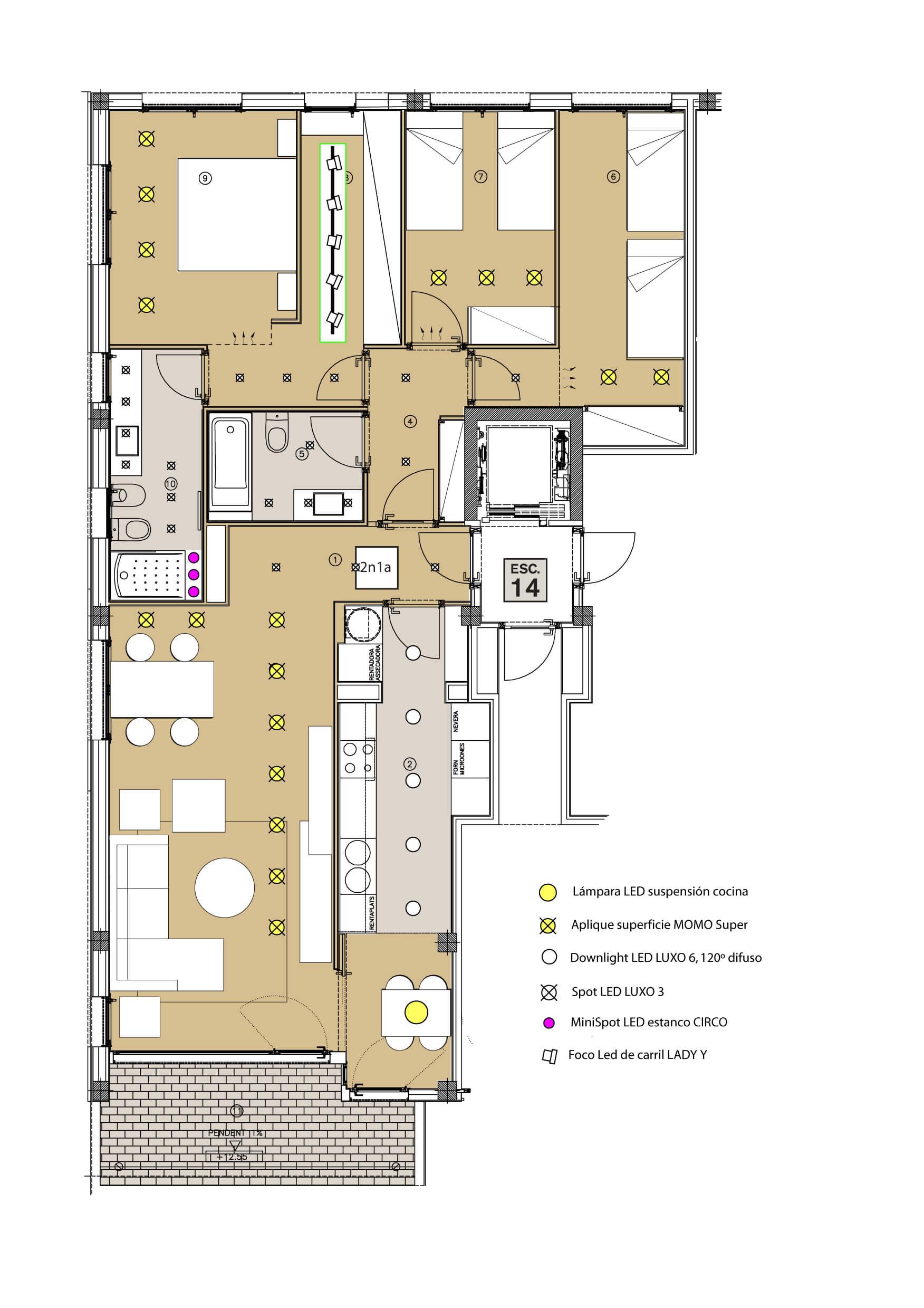
En la arquitectura de interiores, el plano de iluminación es la forma en la que se abordan y aprovechan los recursos lumínicos de una estancia, recogiendo las necesidades y. Proyecto de diseño de plano eléctrico de luminaria. Para representar la instalación eléctrica en una vivienda, se pueden usar 3 tipos de esquemas:

coparoman Plano de planta de una instalación eléctrica residencial

Iluminación de interiores. Proyectos de iluminación

Cómo iluminar el salón y el comedor distribución de puntos de luz (con

Planilla de Iluminación y Ventilación YouTube

101 planos de casas Iluminación natural en los espacios interiores con

Diseño de iluminación Domestika

101 planos de casas Iluminación natural en los espacios interiores con

Planos de Plano electrico unifamiliar, en Luminarias Electricidad

101 planos de casas Iluminación natural en los espacios interiores con

Foto Plano de Iluminacion de Planos Arquitectonicos En Monterrey
![🏠 Plano de iluminación ¿Qué es y cómo funciona? [2024] Crehana 🏠 Plano de iluminación ¿Qué es y cómo funciona? [2024] Crehana](https://i2.wp.com/crehana-blog.imgix.net/media/filer_public/12/9f/129f80f9-b6e3-43fd-be59-e91c6cf464af/plano_de_iluminacion.jpg)
🏠 Plano de iluminación ¿Qué es y cómo funciona? [2024] Crehana

Plano de iluminación la luz, alma de los proyectos de decoración

iluminacion plano Buscar con Google Casas modernas arquitectura

Guía práctica para diseñar la iluminación de casa Escandinava de
